In einer ruhigen Lage des Ortsteils Breitenbach, umgeben von natürlicher Idylle, erwartet Sie ein solides Einfamilienhaus aus dem Jahr 1977. Mit einer Wohnfläche von ca. 111 m² und einem großzügigen Grundstück von etwa 1.301 m² bietet diese Immobilie ausreichend Platz für Familien, Paare oder Singles, die Wert auf Raum und Privatsphäre legen. Das Haus präsentiert sich in einem Zustand, der Modernisierungen erlaubt und somit Potenzial für Ihre individuellen Vorstellungen bietet.
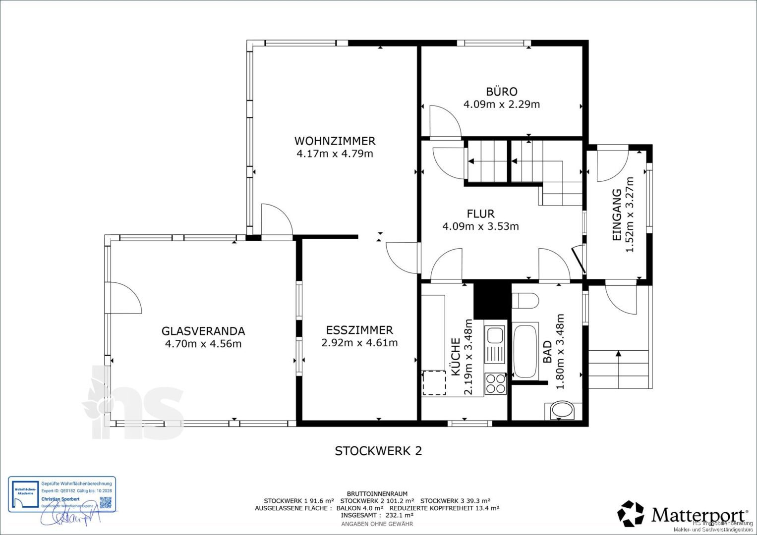
Das Fertigteilhaus ist funktional geschnitten und verfügt über fünf Zimmer, die auf zwei Etagen verteilt sind. Der Dachboden bietet zusätzlichen Stauraum. Die Ausstattung entspricht dem Baujahr und umfasst eine Öl-Zentralheizung (1991), Kunststofffenster mit Isolierverglasung (1995) und eine einfache elektrische Versorgung. Ein Highlight ist der Wintergarten, der den Wohnraum harmonisch erweitert.
Im Außenbereich finden Sie ein Gartenhaus, einen Nutz- und Ziergarten sowie einen kleinen Teich, die zum Entspannen einladen. Für Fahrzeuge stehen eine Tiefgarage und ein Stellplatz im Freien zur Verfügung.
Die Mikrolage überzeugt durch die Nähe zu örtlichen Annehmlichkeiten. Einkaufsmöglichkeiten, Schulen und Ärzte sind gut erreichbar, was den Alltag erleichtert.
Zusammengefasst bietet diese Immobilie:
✅️ eine virtuelle Online-Besichtigung
✅️ ca. 111 m² Wohnfläche auf einem 1.301 m² Grundstück
✅️ 5 Zimmer mit Potenzial zur individuellen Gestaltung
✅️ Wintergarten und Gartenhaus für vielseitige Nutzung
✅️ Tiefgarage und Stellplatz im Freien
Nutzen Sie die Gelegenheit, dieses Haus nach Ihren Vorstellungen zu gestalten und profitieren Sie von der ruhigen, dennoch gut angebundenen Lage in Breitenbach.
