Im Herzen von Lutherstadt Eisleben erwartet Sie diese charmante Doppelhaushälfte, die sich ideal für Familien, Paare oder Kapitalanleger eignet. Die Immobilie liegt in einer Wohngegend, die durch ihre ausgezeichnete Anbindung an das städtische Leben überzeugt. In unmittelbarer Nähe finden Sie Schulen, Kindergärten und Einkaufsmöglichkeiten, die den Alltag erleichtern. Auch Ärzte und Apotheken sind schnell erreichbar, was die Lage besonders attraktiv macht.
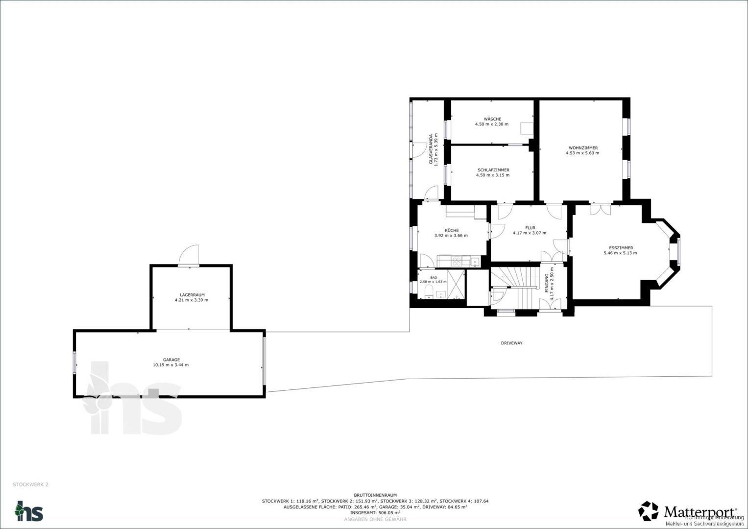
Das Anwesen aus dem Jahr 1915 besticht durch seine großzügige Wohnfläche von ca. 207 m², verteilt auf 14 Zimmer. Die Grundstücksgröße von ca. 598 m² bietet ausreichend Platz für Freizeitaktivitäten und Entspannung im gepflegten Garten. Die massive Bauweise des Hauses sorgt für eine solide und langlebige Struktur, während die Dachziegeleindeckung aus dem Jahr 1995 den Charakter des Hauses unterstreicht.
Im Inneren des Hauses erwartet Sie eine Ausstattung, die dem Baujahr entspricht, jedoch durch moderne Elemente wie ein zeitgemäßes, türhoch gefliestes Bad und eine zentrale Warmwassererzeugung ergänzt wird. Die variable Raumgestaltung ermöglicht es, die Räume nach Ihren individuellen Bedürfnissen anzupassen. Der Wintergarten bietet zusätzlichen Wohnraum und lädt zum Verweilen ein.
Die Immobilie ist mit einer Gas-Zentralheizung ausgestattet, die für behagliche Wärme sorgt, während die Wärmepumpe im Wohnzimmer zusätzlichen Komfort bietet. Gepflasterte Wege, eine Garage sowie ein Stellplatz im Freien runden das Angebot ab. Die isolierverglasten Kunststoff-Fenster aus dem Jahr 1995 tragen zur Energieeffizienz des Hauses bei.
Zusammenfassend bietet diese Doppelhaushälfte eine hervorragende Kombination aus historischem Charme und modernen Annehmlichkeiten.
✅️ virtuelle Online-Besichtigung
✅️ 14 Zimmer auf 207 m² Wohnfläche
✅️ Baujahr 1915, Dachsanierung 1995
✅️ Gas-Zentralheizung und Wärmepumpe
✅️ ruhige Lage mit guter Infrastruktur
