Willkommen in einem charmanten Einfamilienhaus in einer ruhigen Wohngegend von Goldschau. Diese Immobilie aus dem Jahr 1977 bietet auf ca. 96 m² Wohnfläche vier gut geschnittene Zimmer und ist ideal für Familien, Paare oder Singles. Das großzügige Grundstück von 895 m² ist ein wahres Paradies für Gartenliebhaber, mit Möglichkeiten zum Entspannen und zum Anbau von Obst und Gemüse.
Das Haus besticht durch seine solide Massivbauweise und wurde kontinuierlich gepflegt. Die Ausstattung umfasst eine moderne Pelletheizung aus dem Jahr 2022, eine Dachziegeleindeckung und Kunststofffenster mit Isolierverglasung, die für eine gute Energieeffizienz sorgen. Ein modernes, türhoch gefliestes Bad mit Dusche rundet das Angebot ab. Die Immobilie ist sofort bezugsfertig, ohne dass Sanierungsarbeiten nötig sind.
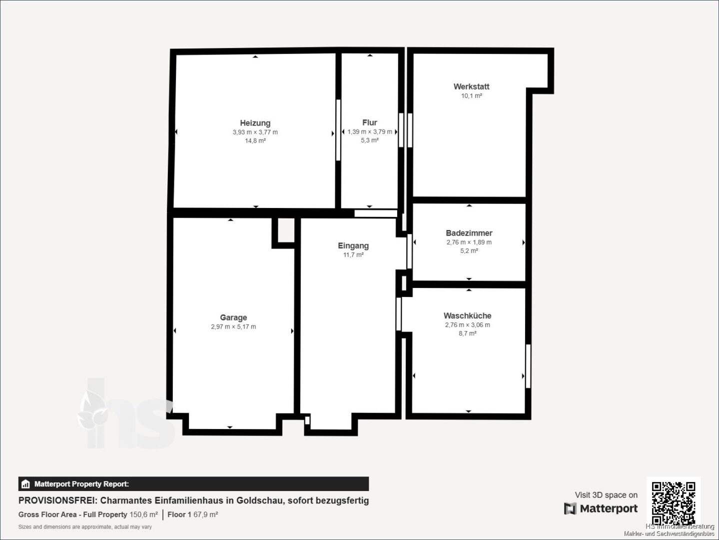
Zur Ausstattung gehören zudem Jalousien, eine Holztreppe und eine Putz-Außenfassade. Für Ihre Fahrzeuge stehen eine Garage und ein Stellplatz im Freien zur Verfügung. Der Garten bietet viel Platz für Freizeitaktivitäten und ist ideal für Kinder.
Die Lage ist besonders attraktiv: In der Nähe finden Sie Einkaufsmöglichkeiten, Schulen und einen Kindergarten. Ärzte und andere Dienstleistungen sind ebenfalls gut erreichbar. Die ruhige und familienfreundliche Umgebung macht dieses Haus zu einem perfekten Rückzugsort.
Zusammenfassend bietet dieses Einfamilienhaus:
✅️ virtuelle Online-Besichtigung
✅️ ca. 96 m² Wohnfläche
✅️ Baujahr 1977, sofort bezugsfertig
✅️ großzügiges Grundstück von ca. 895 m²
✅️ moderne Pelletheizung (2022) und Kunststofffenster mit Isolierverglasung
